
We tailor every marketing campaign to a customer’s requirements and we have access to quality marketing tools such as professional photography, video walk-throughs, drone video footage, distinctive floorplans which brings a property to life, right off of the screen.
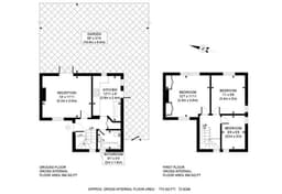
The ground floor comprises a separate reception room with a double door leading to a large garden, a downstairs family bathroom and a fully fitted modern kitchen. The first floor comprises two double bedrooms and a good single bedroom. The property is naturally decorated throughout and benefits from off-street parking.
The property is ideally located close to a range of local amenities including supermarkets, coffee shops, bars and restaurants as well as the open green spaces at North Acton Playing Fields. The area is a top choice for families for its proximity to a range of both primary and secondary schools that cater to children of all ages. There is also easy access to plenty of public transport options including Acton Mainline and North & West Acton Stations (National Rail and Crossrail Elizabeth Line & Central Line).
Please call Go View London to arrange a private viewing.